
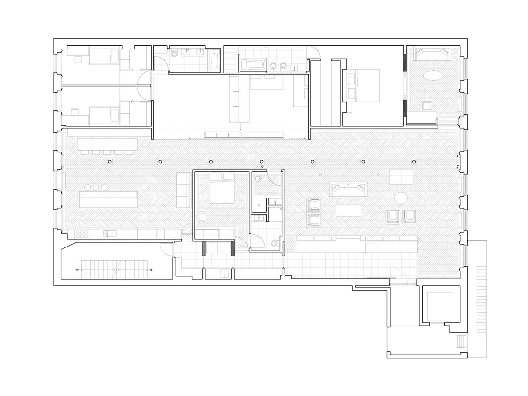
White Street Loft
LOCATION
New York, NY
COMPLETED
2009
AREA
3,800 sq ft
This full floor loft was designed for a mother and her two children. The brief included a request for accommodations for frequent guests. The planning established floor through public spaces, maximizing the daylight from the north and south facing windows, as well as private sleeping and study spaces. In this manner the family predominately lives in the generous loft space while enjoying the ability to retreat to private spaces. The design of storage and utility spaces allow open spaces to be uncluttered.
A simple, rich palette of materials were selected that sit well with the existing cast iron Corinthian columns and pine carrier beam.





